System załadowczy MIWE athlet Piece, maszyny
i urządzenia piekarnicze

System załadowczy MIWE athlet

Powrót do listy produktów

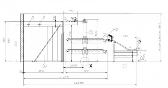
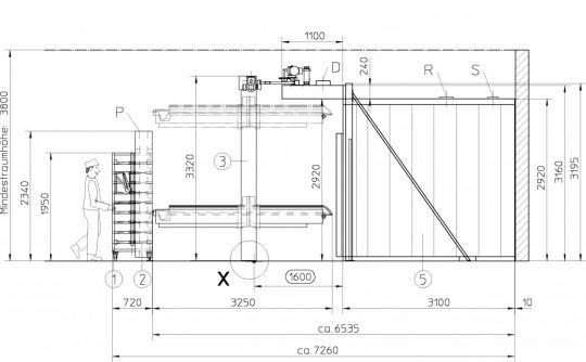
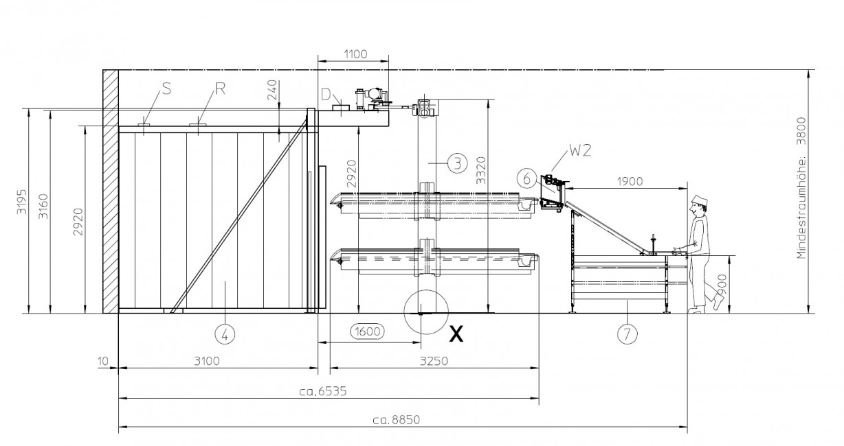
athlet L - dla małych zakładów, maks. liczba obsługiwanych komór - 18

athlet XL - dla zakładów o średniej wielkości, maks. liczba obsługiwanych komór - 30

athlet XXL - dla zakładów pracujących w systemie 2 lub 3 zmianowym – maks. liczba obsługiwanych komór – 36; możliwość załadunku pieców ustawionych piętrowo, wys. do 12 komór

System MIWE athlet odciąża najtrudniejszy etap produkcji: jakim jest za - i wyładunek pieca, usuwa stres i przeciążenia powstające na tym etapie produkcji i gwarantuje bezpieczeństwo.

UWAGA producenci rzemieślniczy! System MIWE athlet nie oznacza rezygnacji z rzemieślniczej jakości produktów. MIWE athlet nie deformuje nawet najwrażliwszego ciasta (ciasta luźnego), kęsy przekazywane są ostrożnie i w sposób zsynchronizowany, a atmosfera pieczenia jest stała, szybkie i efektywne zasadzanie oraz wyładunek.

Droga produktów na stół athleta:

  • ręcznie bezpośrednio na stół np. z koszyków garowniczych
  • z poprzecznych aparatów załadowczych bezpośrednio na stół lub taśmę załadowczą
  • automatyczne pobieranie produktów z desek piekarniczych układanych ręcznie na taśmie
  • stacja dokująca odbierająca automatycznie produkty z aparatów zał.
  • stacja MIWE butler- system, który przejmuje produkty z aparatów załadowczych zamiast athleta, który w tym czasie dokonuje załadunku lub rozładunku, a to usprawnia pracę

Stacja zraszająca: zraszanie przed pieczeniem oraz po pieczeniu

Automatyczny odkurzacz, pracuje zgodnie z ustawionym czasem

Ogrodzenie ochronne wokół systemu

Sterowanie w systemie MIWE athlet XL i XXL: MIWE TC, ekran dotykowy, możliwość zakodowania do 100 programów, opcja połączenia z systemem zdalnie sterowanym, dla MIWE athlet L – sterowanie FP

Wyładunek:

  • taśma odbiorcza parterowa
  • górna taśma odbiorcza, z systemem przekazu produktów do magazynu
  • wózki rozładowcze - 6 półek z piętrami ustawionymi pod skosem
  • odbiór za pomocą ześlizgu

Co przemawia za automatycznym załadunkiem pieców?

  • Uzyskiwana lepsza jakość produktów (przy ręcznym załadunku - różny czas rozpoczęcia pieczenia, zaparowania, utrata ciepła przez otwarte drzwi, przy wyładunku: wszystkie produkty wyjmowane w jednym czasie - idealnie równomierny efekt wypieku)
  • Oszczędność czasu (krótkie cykle za- i wyładunku)
  • Redukcja personelu (uniknięcie błędów ludzkich, zbyt długi lub krótki czas pieczenia)
  • Wydajność: duża ilość pieczywa w korzystnej cenie i dobrej jakości

Szczegóły:

  • Wysoka jakość wykonania
  • Specjalny silnik z własną obudową – gdzie nie dostają się zabrudzenia, automatyczna konserwacja, 1 raz w roku
  • Mocowanie systemu u góry, lepsza dostępność do pieca bez potykania się o kanty
  • szyny wpuszczane w podłogę, trwałe, gwarantują lekkie przesuwanie athleta. Mniejsze zużycie energii silnika. Prowadnice rolkowe – same wypychają brud na zewnątrz
  • Każdy element po złożeniu mieści się w drzwiach o standardowych wymiarach
  • Ergonomia: wysokość robocza dopasowywana indywidualnie

Masz pytania?

Napisz koniecznie - odpowiemy.